KULTUR EVI
- PROJECT NAME KULTUR EVI
- LOCATION ISTANBUL - TURKEY
- YEAR 2013
Organized by YTONG to celebrate its 50.th establishment, this competition aims to make positive contributions to İstanbul´s isolated social groups.
With its proposal, CBA uses architecture as a platform to promote social inclusion in a neighborhood where there is a life style clash - isolated new social and cultural layers caused by rural-to-urban migration. It creates a design strategy to foster new collective behavior among isolated different social groups in the neighborhood.
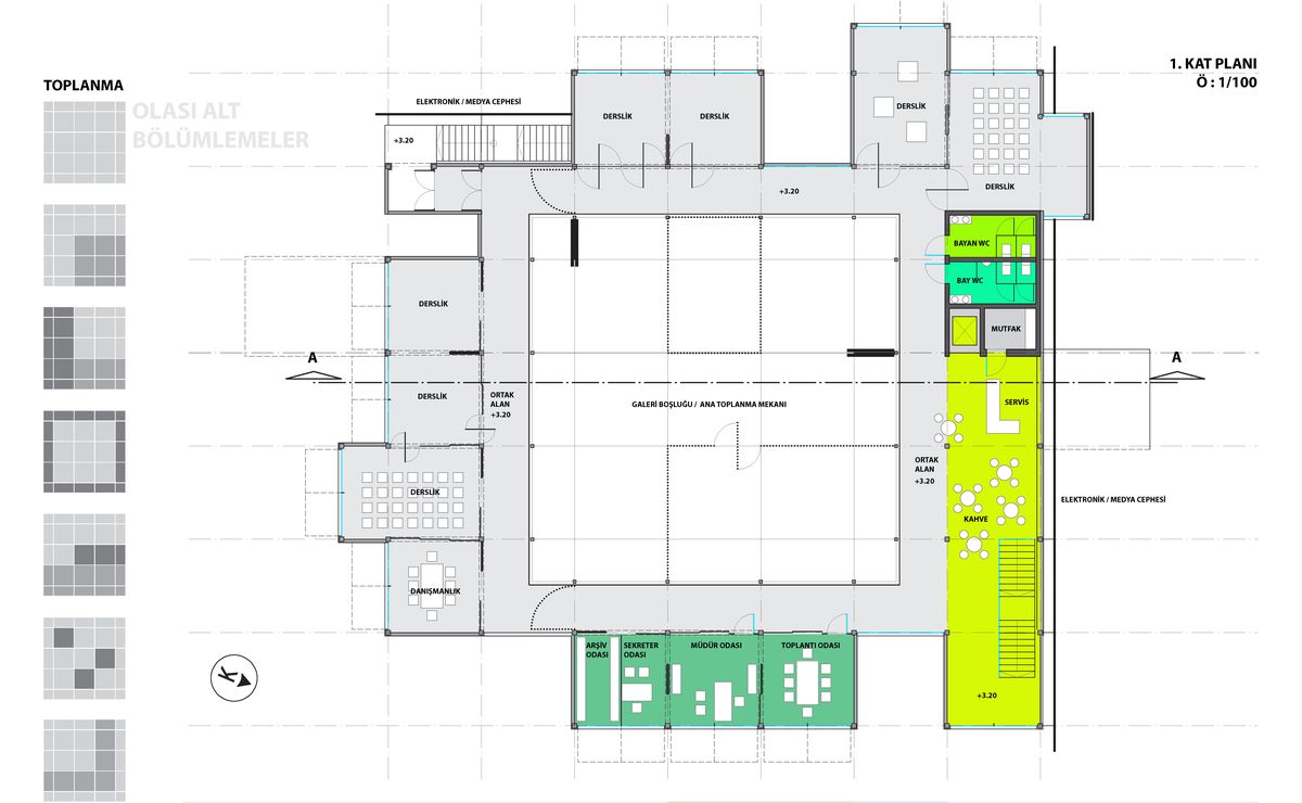
In the project, not only can newcomers and residents informally gather, meet and learn, but also they can act as an active individual and shared participants to create architecture space . It is meant to both empower new arriving individuals and to connect all kinds of social groups. Different from its common application to shape iconic landmarks, the architecture in here is solely used to create a truly multifunctional and highly flexible cultural platform. The project offers a wide range of options to manually alter, adapt, subdivide, reuse, and convert the space and therefore renders an almost endless number of feasible layouts.
Workshops, cultural productions, events, festivals, consulting services, and much more can be performed easily. The project is left virtually unfinished, without a clear border between inside and outside, and ready for any kind of future extension. The radical functional design wants to encourage neighbors and visitors to put in further action and intervention. Situated between the coastal road and the Marmara Sea, a large media façade towards the street attracts the attention of passers-by and invites all to events.
Together with the main entrance, the media face de is the only constant part and the project´s anchor point. Everything else can be changed. The project’s main attraction comes from its particular ability to appear totally different on any given day.

