KARAMAN HOUSE
- PROJECT NAME KARAMAN HOUSE
- LOCATION RIZE / TURKEY
- YEAR 2025
Building Gross Area: 650 m2
Karaman House is a contemporary residential project designed in harmony with its natural hillside setting. The architectural language emphasizes horizontality, transparency, and strong indoor–outdoor connections through generous terraces and large glazed surfaces.
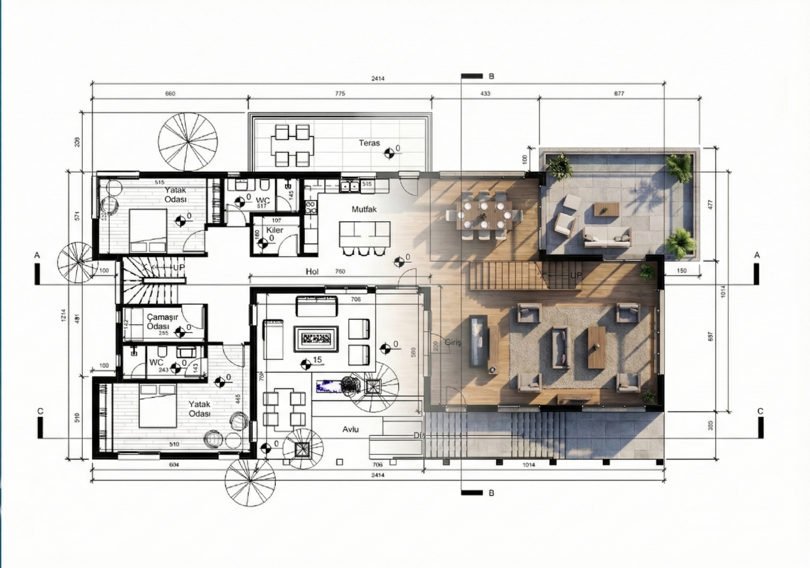
The plan organization is clearly defined across levels. The ground floor accommodates the main living spaces, including an open-plan living, dining, and kitchen area that extends toward the landscape. Upper levels are reserved for private functions, where bedrooms are positioned to ensure privacy while maintaining visual continuity with the surroundings. The sectional design allows the building to adapt naturally to the sloped terrain, creating a balanced relationship between architecture and topography.

